DIY . 트렁크 쪽에서 테일게이트 열고 닫는 스위치 달기.
- 필요성 : 순정 스타리아 트렁크 내부에서 테일게이트 열고 닫는 스위치 없음. 트렁크 내부에서 문 열고 닫기 편하게 스위치 장착.
- 작업 방법 요점 : 스타리아 테일게이트 스위치 에 추가 구입한 스위치 병렬로 연결. 스위치에 직접 접근할 필요없이 접근성 좋은 곳 찾아서 연결함(아래 상세 설명 있음).
스위치 선정
- DIY 용으로 판매되는 여러 종의 트렁크 스위치 중에서 제품2(아래 제품) 활용하기로 한다.
- 스위치 연결되는 전선이 커넥터 방식으로 되어있어 DIY 작업 이후 차량 트림 탈거시에도 편리하게 분리 가능.
- 배선 방법
검정색 접지, 백색 스위치 로만 연결해도 스위치 역할 은 충분하다.
붉은색 선을 차량 전원 (12V~ 13V) 에 연결한 경우, 스위치 누르고 있는 중에만 스위치 내부 LED 켜진다. LED 켜진 상태의 소비전류 실측 값 4mA. 트렁크 스위치 는 오래 누르고 있는게 아니라 잠시 한번 눌러주고 떼는 것이므로 LED 표시한다고 딱히 유용함은 없음.

스위치 구입처
2.65US $ 35% OFF|Car Tailgate Switch Innovative And Practical Tank Door Switch Intelligent Electric Trunk Release Reset Button U
Smarter Shopping, Better Living! Aliexpress.com
www.aliexpress.com
스위치 장착
트렁크 측면 필라 트림의 아래 붉은 색 부분이 최적의 장소.

테일게이트 필라트림 탈거 상세. https://igotit.tistory.com/5293
스타리아 . 탈거 . 테일게이트 필라 트림
사전 : 테일게이트 웨더스트립 탈거 https://igotit.tistory.com/5292 트림 탈거 상세 탈거전 상태 안전벨트 덮개를 개방하면 내부에 볼트 있으며, 매우 강하게 체결되어있다.
igotit.tistory.com
위 링크 설명중 왼쪽편만 탈거 하면 된다.
지름 22mm 구멍 내고

스위치 꼽아보면 빠지지는 않는데 헛돌므로 뒤에서 글루건 이나 접착제로 고정.

뒤에서 본 모습

스위치 전선 길이 연장
- 60cm 로 길이 늘림. (60cm 는 좀 아쉬움 65~70cm 가 적당함)

스위치 결선 지점 찾기
- 순정 차량의 테일게이트 스위치에 추가 구입한 스위치를 병렬 연결하기만 하면 되는데, 스위치에 직접 연결하지 않아도 된다.
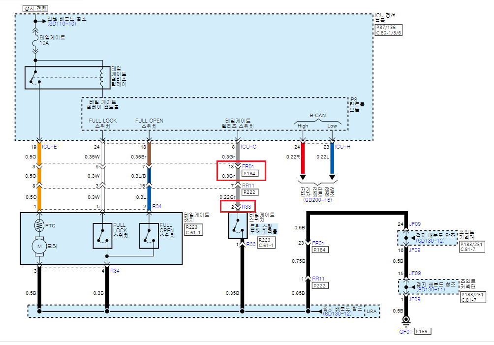
아래 회로도를 보면 R33 이 테일게이트 스위치 이며 이 스위치의 1번핀은 접지이고 2번핀의 연결 상황을 보면 커넥터 FR01 의 핀 13으로 연결되어있다. 선 색상은 Gr (그레이) 임.

스위치 R33 에 직접 접근하려면 테일게이트 트림 분리해야 하는 반면, FR01 은 트렁크 측면 트림만 분리하면 쉽게 접근된다. FR01 위치는 아래 사진의 붉은색 원 부분.
FR01 뿐만 아니라 아래 사진의 파란색 원형 부분인 F61-A 의 16번 핀과 스위치 접지선 인 F61-A 의 15번 핀 (핀맵 상세보기 : https://igotit.tistory.com/5511 )에도 연결 가능하다.

상기 사진의 FR01 근접사진(아래) 에서 가장 끝에 보이는 회색선이 순정 차량의 스위치 2번핀에 연결되어있다.
추가할 스위치의 핀2개 중 1개를 저 선과 연결하고 나머지 하나는 접지로 연결한다.

F61-A 의 도어 스위치 선
- 회색선이 도어 스위치선이며, 바로 아래 선이 스위치 접지선이어서 작업성 훨씬 용이함.

작업 용이하게 커넥터 빼고, 아래 사진의 검정색이 F61-A

전선에 감겨져 있는 절연 테이프 일부 벗겨낸다.

회색(트렁크스위치 신호선) 선과 분홍색에 검정줄무늬 있는 선(스위치 접지) 의 일부만 커터칼로 벗겨내서 구리선 노출시킨다.

스위치로 연결할 선을 땜 한다.

절연 테이프로 마감하고,

커넥터 다시 꼽아주고, 선정리

백색 커넥터를 스위치에 꼽아주면 작업완료.
참고.
커넥터 분리했다 다시 연결하면 트렁크 스위치 눌러도 정상 작동안한다. 테일게이트 리셋 시키면 정상 작동함.
리셋방법 : 아래 사진의 왼쪽 버튼 누른 상태에서 번호판위에 있는 테일게이트 스위치 길게 누르고 3초정도 유지하면 삐 소리 나면서 리셋된다. 이후 수동으로 문 닫으면 완료. 스위치 눌러보면 정상 작동함.

트렁크 스위치 최종 모습
- 아래 사진의 베이지 색 트림의 가장 아래 사각형 버튼이 트렁크 열고 닫는 버튼.
- 차량 내부에서 테일게이트 열고 닫기 완전하게 작동.


작동 영상
- 아래 영상의 1분 38초 시점 부터 .
연관
자동차 트렁크 스위치 모음
제품1.- 원형 홀 에 장착가능하므로 드릴 작업만으로 쉽게 장착가능. 제품1. 구입처. 2.98US $ 30% OFF|Trunk Release Button Auto LED Liftgate Trunk Open Release Switch Tailgate Trunk Open Release Switch ElectronicSmarter
igotit.tistory.com
DIY . 스타리아 . 트렁크 . 컴퓨팅 환경 셋팅
개요 - 스타리아 트렁크 테일게이트 밀착 배치된 컴퓨팅 환경. - 노트북에 모니터 확장 연결하여 듀얼 모니터 활용. - 테일게이트에 배치한 블루투스 스피커로 노트북 사운드 출력. - LTE 라우터로
igotit.tistory.com
첫 등록 : 2024.05.09
최종 수정 : 2025.06.24
단축 주소 : https://igotit.tistory.com/5509
'지속가능티끌 > 자동차' 카테고리의 다른 글
| DIY . 스타리아 . 순정형 루프랙 장착 (0) | 2024.05.25 |
|---|---|
| 본인 차량 색상코드 확인방법 . 차량 외장 색상 동일 페인트 구하기. (0) | 2024.05.13 |
| 자동차 트렁크 스위치 모음 (0) | 2024.05.09 |
| 스타리아 . 파워 테일 게이트 모듈 상세 . 커넥터 핀맵 (0) | 2024.05.09 |
| 스타리아 . 윈도우 백 . 카마인 스페이스 큐브 . 단열 (0) | 2024.04.29 |
댓글